
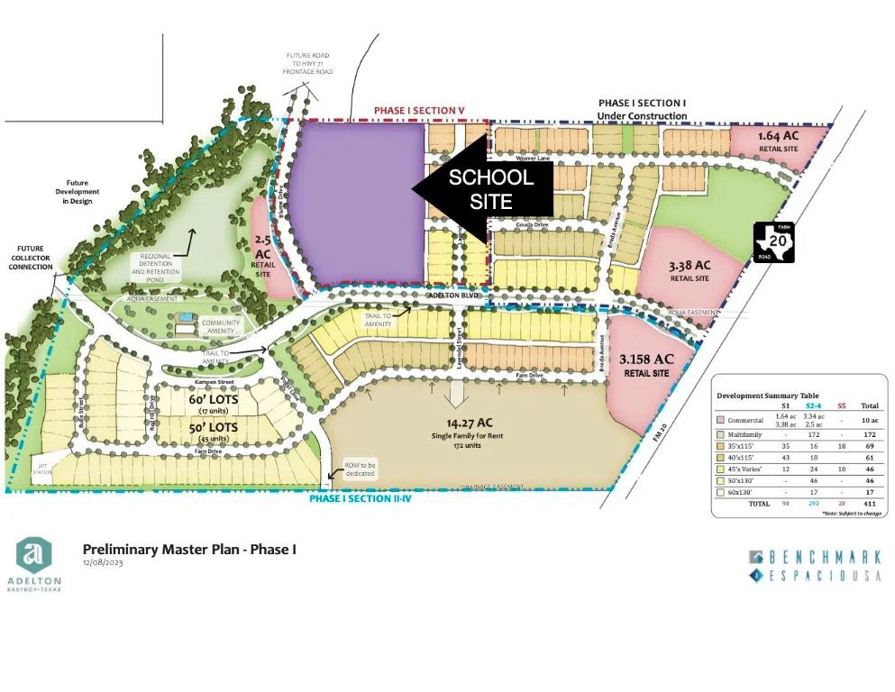
Great School Site located within Bastrop's newest master planned community Adelton, where there are approvals for 1,200 residential units and 125,000 sf of commercial space within. Approx. 10 acres located on Adelton Blvd. No portion of this site lies within the FEMA 100-year floodplain. All utilities will be stubbed to site. Priced $7.50 psf.
Based on information submitted to the MLS GRID as of 2024-04-29 00:00:00 UTC. All data is obtained from various sources and may not have been verified by broker or MLS GRID. Supplied Open House Information is subject to change without notice. All information should be independently reviewed and verified for accuracy. Properties may or may not be listed by the office/agent presenting the information.
The information being provided is for consumers' personal, non-commercial use and may not be used for any purpose other than to identify prospective properties consumers may be interested in purchasing. Based on information from the Austin Board of REALTORS®. Neither the Board nor ACTRIS guarantees or is in any way responsible for its accuracy. All data is provided "AS IS" and with all faults. Data maintained by the Board or ACTRIS may not reflect all real estate activity in the market.
Last Updated: . Source: ACTRIS
Provided By
Listing Agent: Spence Collins (#345335), Phone: (512) 472-2100
Listing Office: McAllister & Associates (#2503)
Provided By (Buyer)
Buyer's Agent: Non Member (#NONMBR)
